Following are a few examples of projects that have been done.
The projects all included as much input and participation from teachers as was possible. With the teachers, we start from children’s needs and the program intentions to then identify the desired experiences to provide and activities to support.
With this process, the program staff are an integral part of the general design decisions and in a good position to do ongoing improvements for a never finished, always-improving play and learning place.
Penfield Children’s Center
Penfield Children’s Center reached out to Design4Kids to collaborate in revisions to their outdoor play area so it could better support their program serving a diverse population of children including those with developmental delays and disabilities.
Together a plan was developed with major transformations to the outdoor area.
Final plan for Penfield Children’s Center:
Existing Penfield Site:




New Penfield Site:






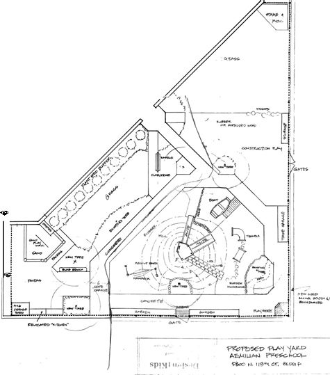
The Aemilian Preschool
The Aemilian Preschool learned they would need to move from the leased church space they had been in for many years. With the need to develop a new outdoor area for their children, they called on Gerry/Design4Kids who had helped them develop an outdoor they that they treasured.
The teachers and director thoughtfully and actively participated in planning for the new outdoor area and an existing space was transformed into their new playful learning yard.
Relocation of items and construction was done by The Green Team of Wisconsin and LR Contract services with excavation and concrete work by Berghammer Construction and the boundary fence by Metropolitan Fence.
Final Plan for the Amelian Preschool:

Amelian Preschool site, before construction:


Amelian Preschool’s new yard, in construction:






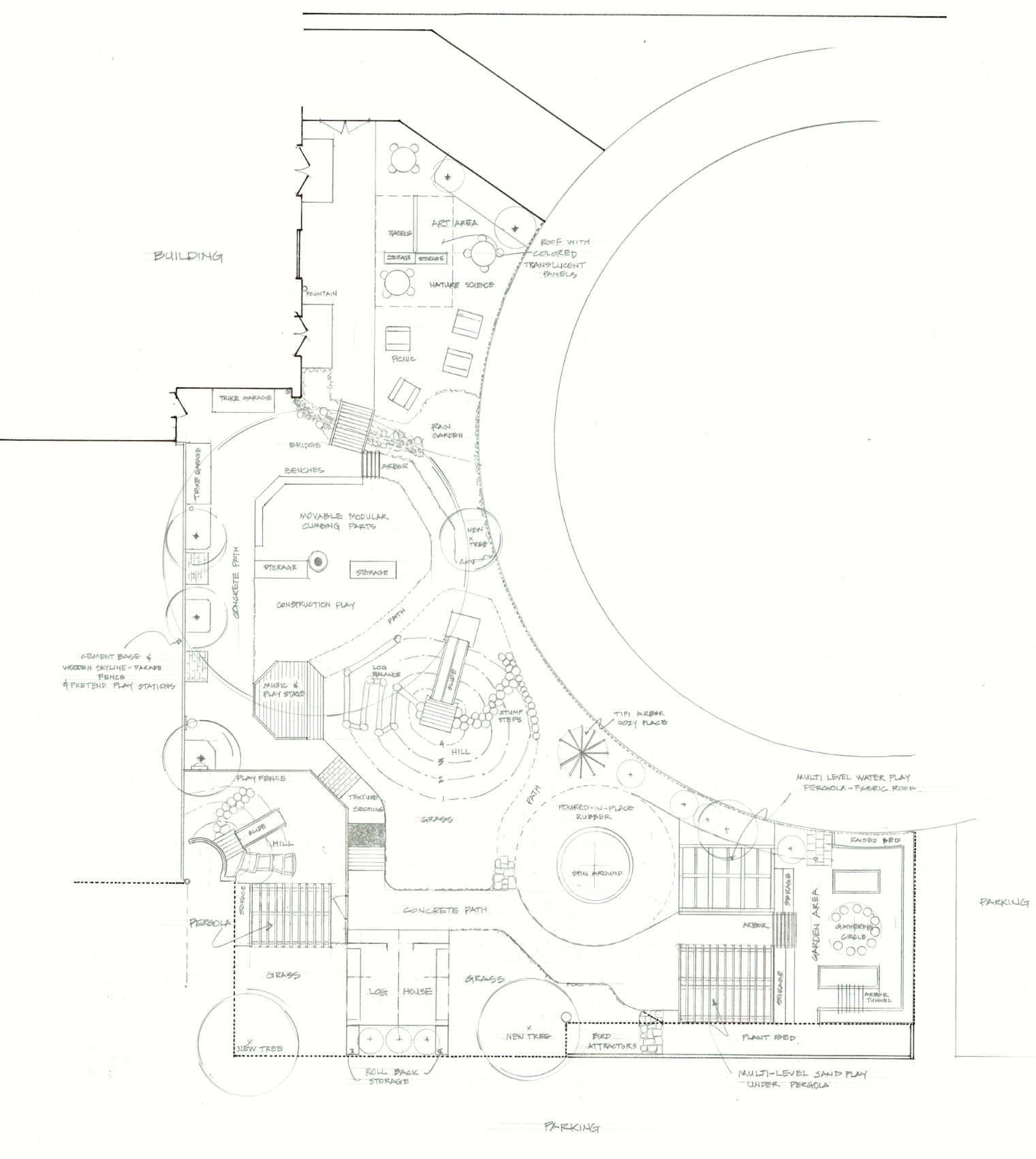
Here We Grow Child Care Center
Here We Grow Child Care Center in Sheboygan, Wisconsin wished to upgrade their outdoor play area and remove some old play structures with hazardous features.
Teachers and administrators participated in re-visioning how the yard could better serve the children and what it could be like, resulting in a conceptual plan.
Construction was done by Abnoba Tree Service.
Here We Grow Child Center Plan:

Here We Grow, original site:





Here We Grow Site, after construction:





JCC “Z” Frank Apachi Preschool
A Reggio-inspired preschool serving 80 children in Glenview, Illinois that wanted “to create a natural, welcoming environment with a variety of different materials to explore”, and to “emphasize the importance of children connecting with and appreciating nature.”
Their great team of dedicated teachers and administrators actively participated in planning what could happen outdoors and envisioning what the setting could be like.
Apachi Preschool before construction:



Apachi Preschool after construction:



Kohl’s Child Development Centers
Directors at the Kohl’s Child Development Centers on the corporate campus wanted to totally change their play yards to be more supportive of their program goals and to provide more nature-rich connections for their children. They liked the inclusion of staff in actively planning the transformation of their yards and the teachers enthusiastically engaged.
Almost everything on the existing yards was removed with all new features constructed.









Children’s Community Center





